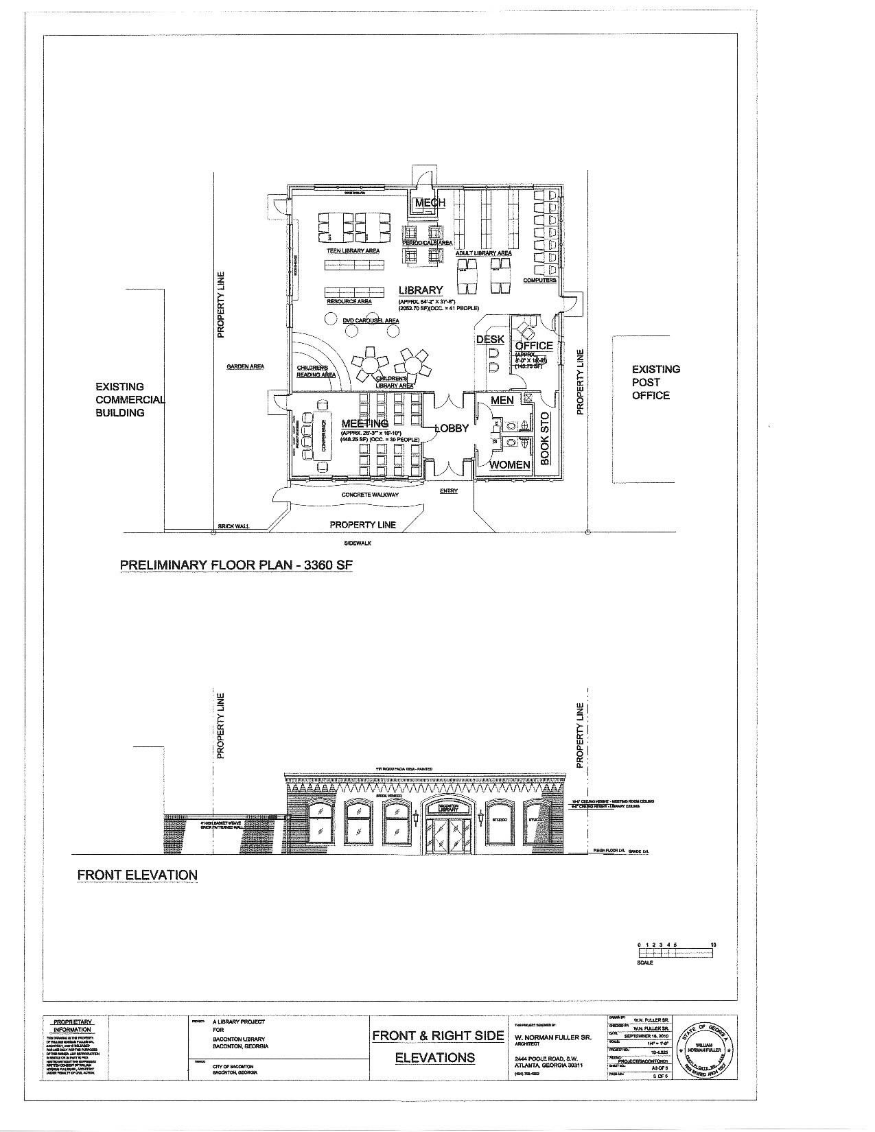
| With a grant from the Betty and Davis Fitzgerald Foundation of Atlanta, The Rural Library Project has developed in collaboration with the City of Baconton a preliminary 3200 square foot floor plan and elevations for a new library to be constructed on main street. Designed to match the facades of the existing storefronts, the new library will include a meeting room and formal garden space and will restore the downtown streetscape by building on a vacant commercial parcel owned by the city with the goal of helping to revitalize the downtown business district. In October 2010 The City of Baconton submitted an application to USDA for a Community Facilities Loan/ Grant to construct the new library.
2.jpg)
Floor Plan and Elevations

New Library Location

Mayor Morman, Regional USDA Director Godfrey Hines and others

Library Organizing Committee reviews USDA Application

Baconton Library Construction Begins!
|